Concurs, Projecte Bàsic, Executiu i Direcció d'Obra
Autor Màrius Quintana
Projecte 2007 - 2008
Execució 2009 - 2010
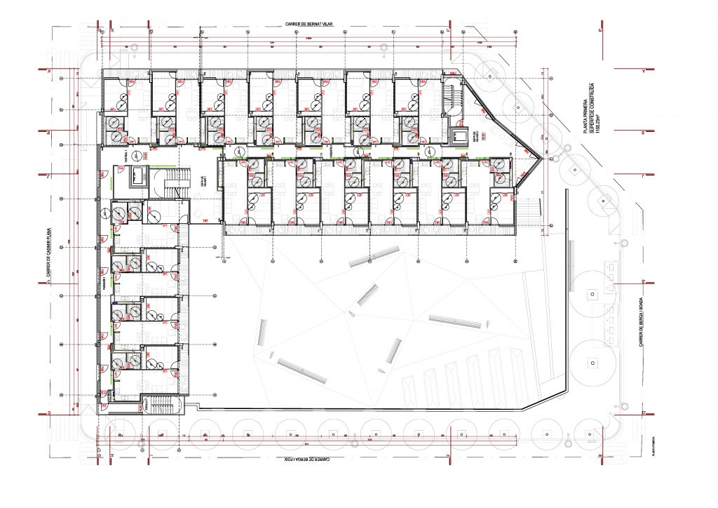
Superfície
4506 m²
Pressupost
Contractista Vàries empreses de la comarca Promotor Fundació Privada Hospital Sant Jaume d'Olot
Col·laboradors Serena Casas, arquitecte. Manel Fernàndez, estructures. EDETCO, project management. Joan Gonzàlez Gou, enginyer
Olot
